Facebook
|
Írjon nekünk!
Kezdőoldal
Cégünkről
Projektek
Ingatlanom eladnám/kiadnám
Kapcsolat
Kérdése van? Hívjon!
30/3-304-305
Kaposvár belváros - Ruhagyár I. ütem
Bemutatás
Műszaki információk
Látványtervek
Lakások / Alaprajzok
Térkép
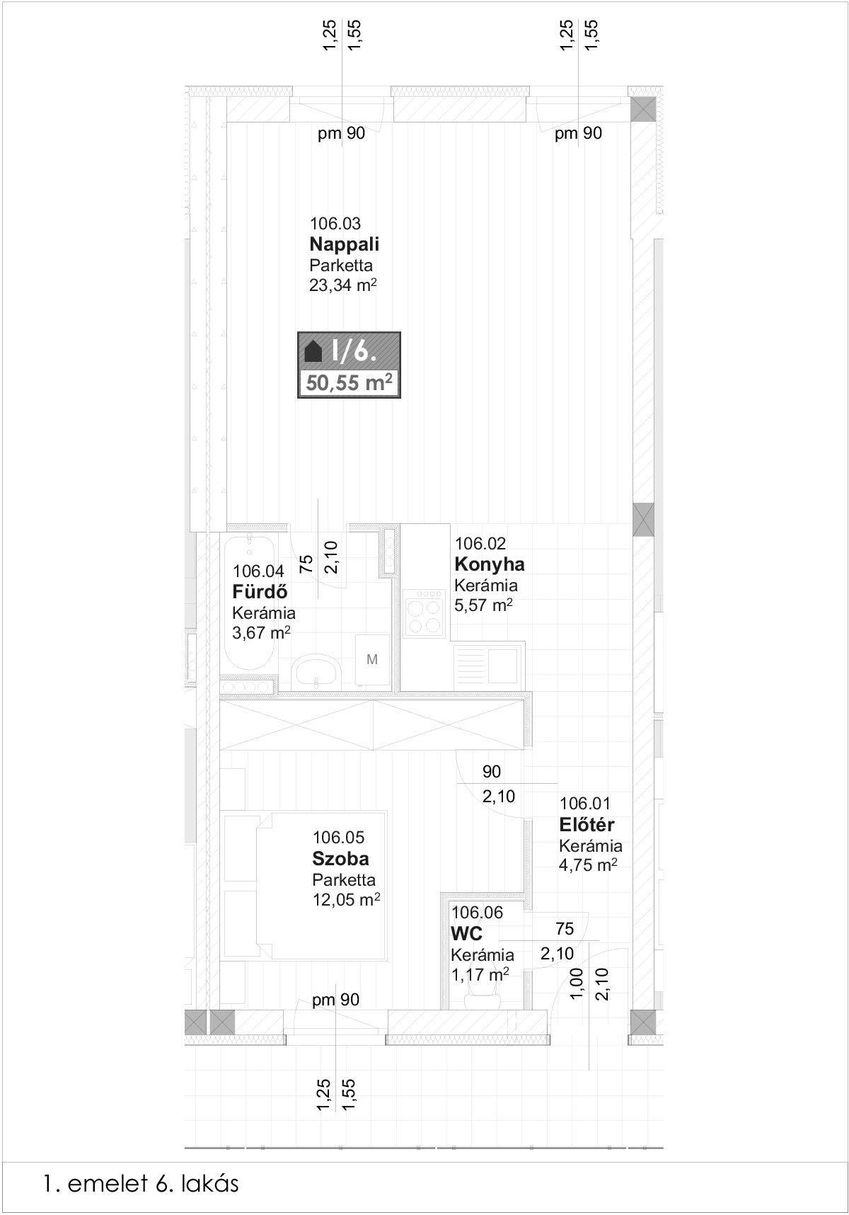
I. Emelet, I/6
Eladási státusz:
Foglalva
Előtér
4,75
Konyha
5,57
Nappali
23,34
Fürdő
3,67
Szoba
12,05
WC
1,17
50,55