Facebook
|
Írjon nekünk!
Kezdőoldal
Cégünkről
Projektek
Ingatlanom eladnám/kiadnám
Kapcsolat
Kérdése van? Hívjon!
30/3-304-305
Kaposvár belváros - Ruhagyár I. ütem
Bemutatás
Műszaki információk
Látványtervek
Lakások / Alaprajzok
Térkép
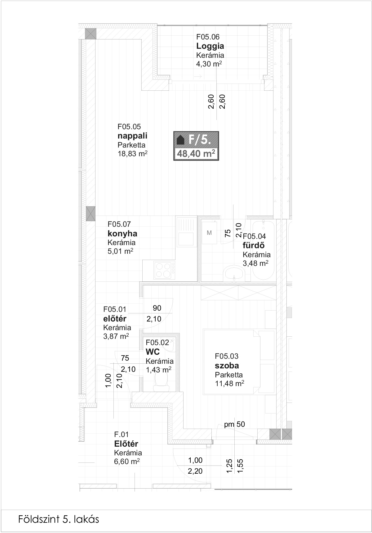
Földszint, F/5
Eladási státusz:
Foglalva
előtér
3,87
WC
1,43
szoba
11,48
fürdő
3,48
nappali
18,83
Loggia
4,30
konyha
5,01
48,40